Ihr neues Zuhause oder Ihre nächste Investition – Immobilienchance in Toplage!

Ihr neues Zuhause oder Ihre nächste Investition – Immobilienchance in Toplage!

Ort
23843 Bad Oldesloe
Kaufpreis 475.000 €
Zimmer 4
Schlafzimmer 3
Wohnfläche ca. 130 m²

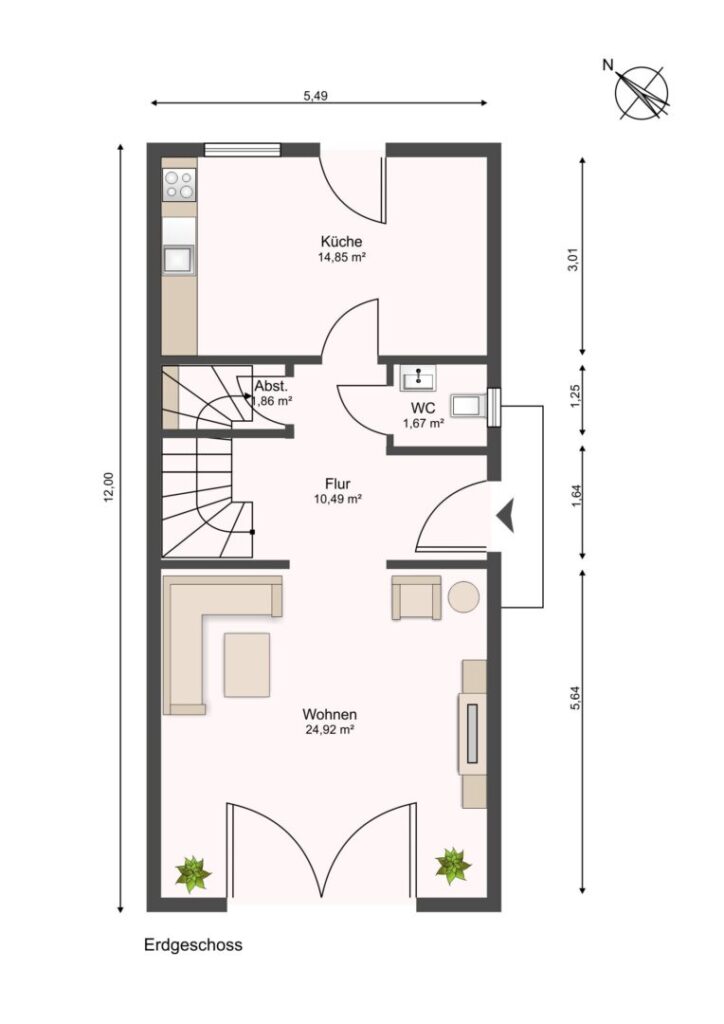
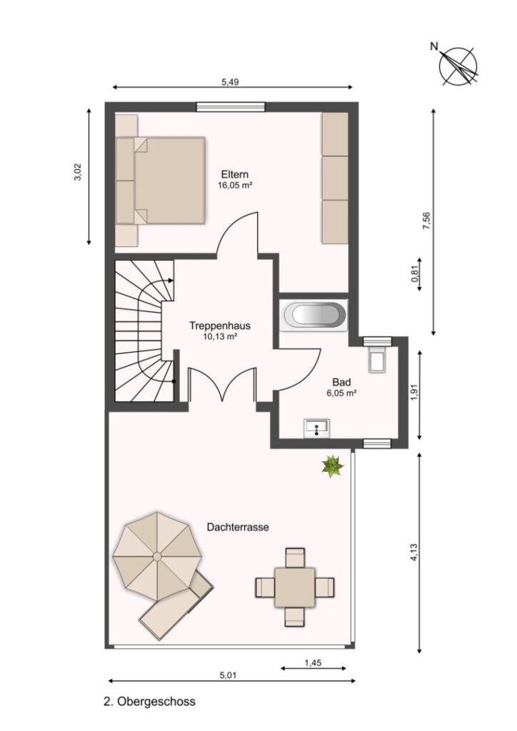
Objektbeschreibung

Hinweis zur Darstellung:
Aufgrund der Wahrung der Privatsphäre der aktuellen Mieter, wurden die Innenaufnahmen dieser Immobilie digital gestaged. Die Bilder zeigen eine beispielhafte Möblierung zur besseren Vorstellung der Raumaufteilung und Nutzungsmöglichkeiten.


Willkommen in dieser charmanten Doppelhaushälfte, die mit ca. 130 m² Wohnfläche und einem ca. 230 m² großen Grundstück genau den richtigen Mix aus Komfort, Raum und Wohnqualität bietet – perfekt für Familien, Paare oder Investoren mit Weitblick!

4 Zimmer, darunter 3 behagliche Schlafzimmer, schaffen ausreichend Platz zum Leben, Lachen und Zurückziehen. Zwei helle Bäder sowie ein separates Gäste-WC sorgen für Privatsphäre und reibungslose Abläufe im Alltag.

Die Einbauküche ist der ideale Ort für gemeinsames Kochen, Genießen und gute Gespräche – und geht direkt in die einladenden Wohnräume mit gepflegtem Fliesen- und Laminatboden über.

Das Highlight? Ein großzügiges Staffelgeschoss mit Dachterrasse – Ihr persönlicher Rückzugsort über den Dächern der Stadt!

Der liebevoll angelegte Garten bietet Raum zum Entspannen, Spielen oder Grillen – und mit Carport, Außenstellplatz und Abstellraum ist auch an Alltagsthemen wie Parken und Ordnung gedacht.

Vermietet & lukrativ:
Diese Immobilie ist derzeit vermietet und bietet mit einer Netto-Ist-Miete von ca. 14.928 € bereits attraktive Erträge. Die Soll-Miete liegt bei rund 22.600 € jährlich – ein echtes Potenzial für Kapitalanleger!

Lagevorteil Bad Oldesloe: Ruhig gelegen, aber gut angebunden – ideal für Pendler, Familien und Ruhesuchende gleichermaßen.

Ob Eigennutzung oder Investment – dieses Haus hat Perspektive!

Jetzt Besichtigung sichern und sich selbst überzeugen!
Mehr anzeigenWeniger anzeigen

Ausstattung

Balkon
Ja
Loggia
Ja
Stellplatz
Ja
Ausstattung
Standard
Dusche
Ja
Bad mit Badewanne
Ja
Bad mit Fenster
Ja
Einbauküche
Ja
Fliesen
Ja
Laminat
Ja
Parken im Freien
Ja
Garten
Ja
Abstellraum
Ja
Gäste WC
Ja

Lage

Die angebotene Immobilie befindet sich in einer ruhigen und attraktiven Wohngegend von Bad Oldesloe, einer charmanten Stadt im Herzen Schleswig-Holsteins. Die Lage zeichnet sich durch eine hervorragende Anbindung an die Natur sowie eine sehr gute Erreichbarkeit von zentralen Infrastrukturen aus.

In unmittelbarer Nähe finden Sie Einkaufsmöglichkeiten für den täglichen Bedarf, darunter Supermärkte, Bäckereien und lokale Geschäfte. Schulen und Kindergärten sind ebenfalls gut erreichbar, was die Lage besonders attraktiv für Familien macht.

Die Stadt Bad Oldesloe bietet zudem ein breites Freizeitangebot, von idyllischen Parks und Naherholungsgebieten bis hin zu Sporteinrichtungen. Die umliegende Natur lädt zu Spaziergängen und Outdoor-Aktivitäten ein.

Die Verkehrsanbindung ist ideal: Der Bahnhof Bad Oldesloe ist nur wenige Minuten entfernt und ermöglicht schnelle Verbindungen nach Hamburg und Lübeck. Zudem haben Sie über die nahegelegenen Autobahnen A1 und A21 eine ausgezeichnete Anbindung an das überregionale Verkehrsnetz.

Zusammenfassend lässt sich sagen, dass die Lage dieser Immobilie in Bad Oldesloe sowohl für Familien als auch für Pendler und Naturliebhaber äußerst attraktiv ist. Hier genießen Sie die Vorzüge einer ruhigen Wohngegend bei gleichzeitiger Nähe zu urbanen Annehmlichkeiten und einer hervorragenden Verkehrsinfrastruktur.

Objektdaten

Ort
23843 Bad Oldesloe
Wohnfläche
ca. 130 m²
Grundstücksfläche
ca. 230 m²
Anzahl Zimmer
4
Anzahl Schlafzimmer
3
Anzahl Badezimmer
2
Anzahl Balkon / Terrasse
1
Anzahl Logia
1
Balkon/Terassenfläche
ca. 1 m²
Anzahl Stellplätze
2
Kaufpreis
475.000 €
Provisionshinweis
Mit Abschluss eines notariellen Kaufvertrages ist vom Käufer eine Provision in Höhe von 3 % zuzüglich. MwSt. des beurkundeten Kaufpreises an Gass Immobilien zu zahlen. Die Provision ist verdient und fällig mit Vertragsabschluss.
Verfügbar ab
Nach Vereinbarung!
Vermietet
Ja
Objektart
Haus
Nutzungsart
Wohnen
Verfügbarkeit
Verfügbar
Vermarktungsart
Kauf
Baujahr
2011
Zustand
Gepflegt

Ausstattungsbeschreibung

Ausstattung im Überblick:

ca. 130 m² Wohnfläche auf zwei Etagen plus Staffelgeschoss
4 Zimmer, davon 3 Schlafzimmer
2 helle Bäder + separates Gäste-WC
Einbauküche mit allen wichtigen Elektrogeräten
Dachterrasse im Staffelgeschoss mit viel Platz zum Entspannen
Fliesen- und Laminatböden in gepflegtem Zustand
Garten zur privaten Nutzung
Außenstellplatz
Abstellraum für zusätzlichen Stauraum
Aktuell vermietet – ideal für Kapitalanleger
Netto-Ist-Miete ca. 14.928 €/Jahr
Netto-Soll-Miete ca. 22.600 €/Jahr

Ihr Ansprechpartner

Alexander Gass
Kleine Salinenstraße 6a
23843 Bad Oldesloe

Energieausweis

Energieausweisliegt vor
Energie­ausweistypBedarfsausweis
Erstellt am27.01.2022
Gültig bis26.01.2032
PrimärenergieträgerGas
EnergieeffizienzklasseD
Endenergiebedarf104,30 kWh/(m²·a)
HeizungsartGas-Heizung
A+
A
B
C
D
E
F
G
H

Ähnliche Immobilien

Select the fields to be shown. Others will be hidden. Drag and drop to rearrange the order.
  • Image
  • SKU
  • Rating
  • Price
  • Stock
  • Availability
  • Add to cart
  • Description
  • Content
  • Weight
  • Dimensions
  • Additional information
Click outside to hide the comparison bar
Compare